kъща L
Сутерен
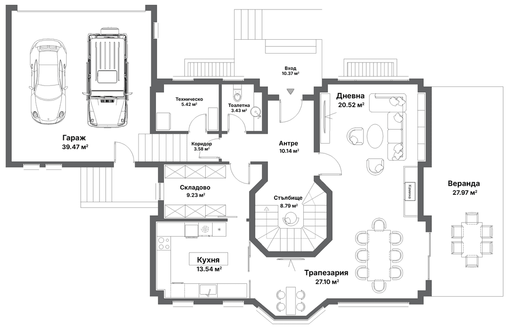
Етаж 1
Етаж 2



Просторен сутерен с естествено осветление чрез два английски двора, предвидена ВиК инсталация и директна връзка към двойния гараж. Пространство, което може да бъде оформено според нуждите - от фитнес, хоби стая до складова зона или винарна.
На първия етаж ви посреща обширна дневна и трапезария с директен достъп до уютна веранда, просторна кухня с остров и връзка към складово помещение, техническо помещение, тоалетна и антре, което осигурява комфортно движение и логичен поток между зоните.
На втория етаж са разположени четири комфортни спални. Две от които са със собствени бани, дрешници и директен достъп до терасата. Етажът включва още отделна баня, коридор и достъп към голямата слънчева веранда.
Разпределение
Площ
497.16 м2
Спални
4
Бани
4
Гаражи
2
Веранди
2
Детайли
655 000 € с ДДС
Цена








kъща L
Сутерен
Етаж 1
Етаж 2



Сутерен
Етаж 1
Етаж 2



Просторен сутерен с естествено осветление чрез два английски двора, предвидена ВиК инсталация и директна връзка към двойния гараж. Пространство, което може да бъде оформено според нуждите - от фитнес, хоби стая до складова зона или винарна.
На първия етаж ви посреща обширна дневна и трапезария с директен достъп до уютна веранда, просторна кухня с остров и връзка към складово помещение, техническо помещение, тоалетна и антре, което осигурява комфортно движение и логичен поток между зоните.
На втория етаж са разположени четири комфортни спални. Две от които са със собствени бани, дрешници и директен достъп до терасата. Етажът включва още отделна баня, коридор и достъп към голямата слънчева веранда.
Разпределение
Площ
497.16 м2
Спални
4
Бани
4
Гаражи
2
Веранди
2
Детайли
655 000 € с ДДС
Цена