kъща B
Сутерен
Етаж 1
Етаж 2



Сутерен
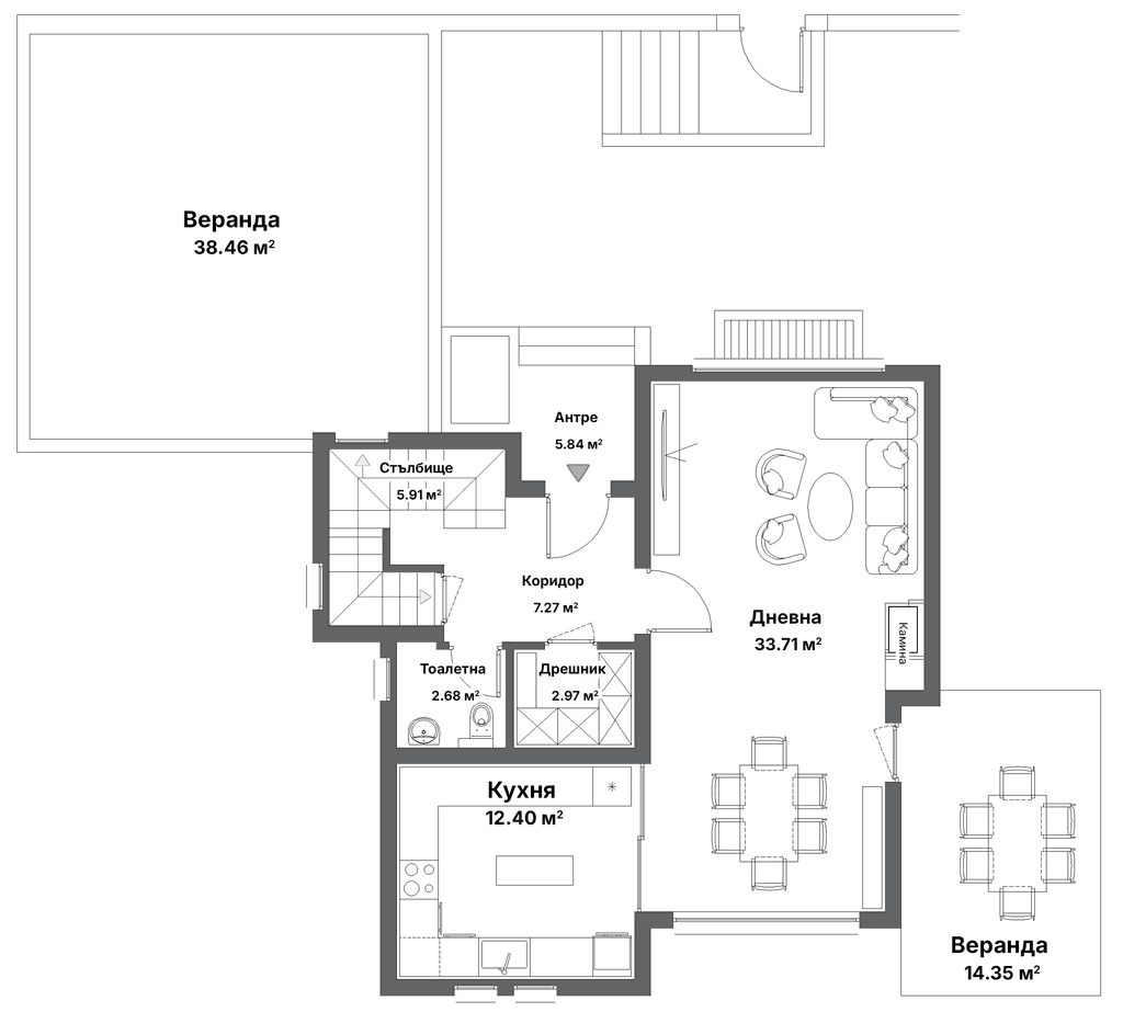
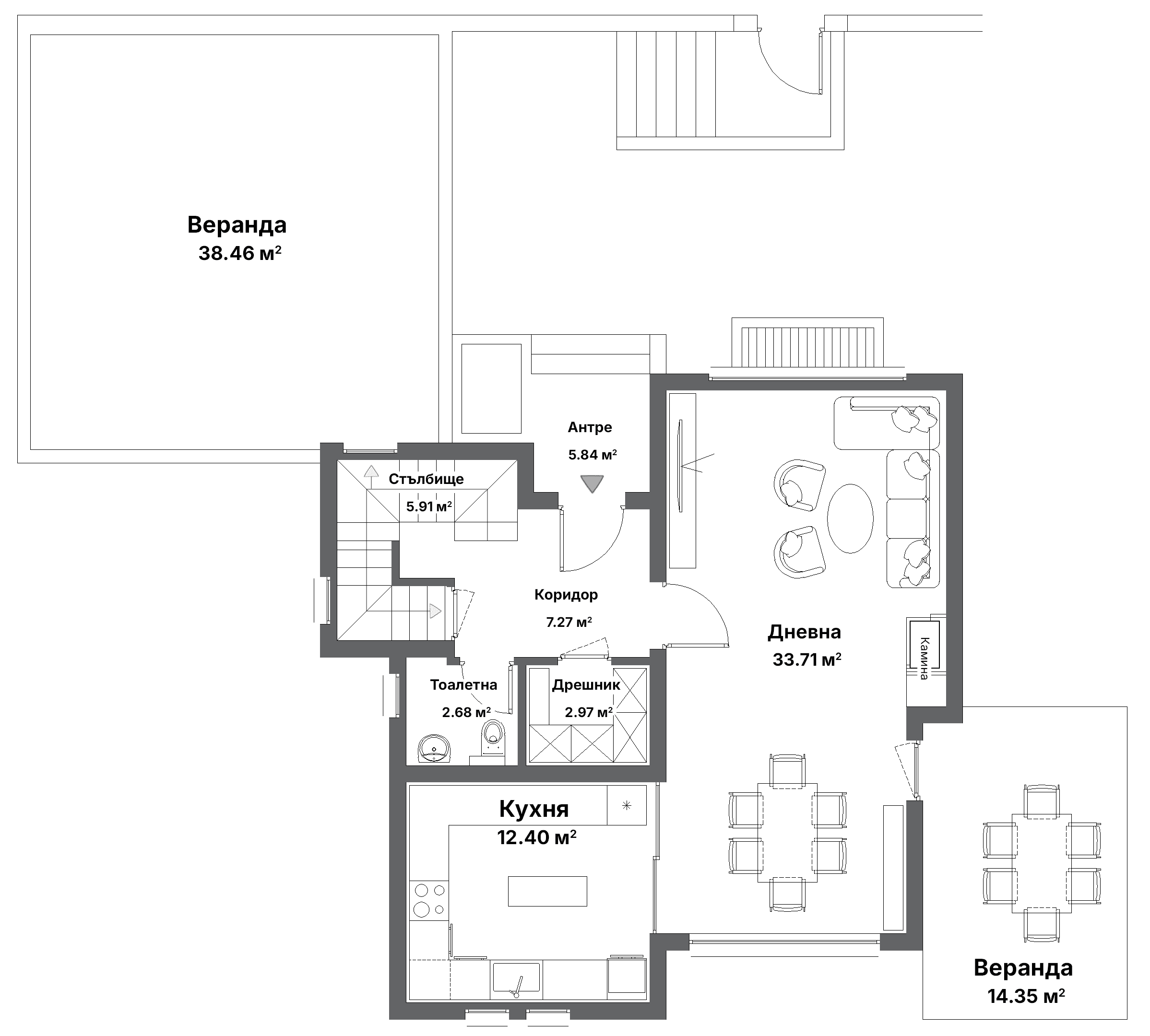
Етаж 1
Етаж 2



Сутерен
Етаж 1
Етаж 2



Просторен сутерен с естествено осветление чрез английски двор, предвидена ВиК инсталация и директна връзка към двойния гараж. Пространство, което може да бъде оформено според нуждите - от фитнес, хоби стая до складова зона или винарна.
На първия етаж ви посреща обширна дневна с директен достъп до уютна веранда, просторна кухня с остров, функционален дрешник, тоалетна и коридор, който осигурява комфортно движение и логичен поток между зоните.
От стълбището се излиза и на голямата слънчева веранда. На втория етаж са разположени три комфортни спални. Родителската спалня е със собствена баня, дрешник и директен достъп до терасата. Етажът включва още отделна баня, светъл коридор и балкон.
Разпределение
Площ
270.88 м2
Спални
3
Бани
3
Гаражи
2
Веранди
2
Детайли
395 000 € с ДДС
Цена
Просторен сутерен с естествено осветление чрез английски двор, предвидена ВиК инсталация и директна връзка към двойния гараж. Пространство, което може да бъде оформено според нуждите - от фитнес, хоби стая до складова зона или винарна.
На първия етаж ви посреща обширна дневна с директен достъп до уютна веранда, просторна кухня с остров, функционален дрешник, тоалетна и коридор, който осигурява комфортно движение и логичен поток между зоните.
От стълбището се излиза и на голямата слънчева веранда. На втория етаж са разположени три комфортни спални. Родителската спалня е със собствена баня, дрешник и директен достъп до терасата. Етажът включва още отделна баня, светъл коридор и балкон.
Разпределение
Площ
270.88 м2
Спални
3
Бани
3
Гаражи
2
Веранди
2
Детайли
395 000 € с ДДС
Цена








kъща B